Torna agli annunci

Immobile a uso commerciale/ristorazione in comparto con distributore di carburante

Immobile commerciale di 300 mq al PT con piazzale di 2.000 mq, fronte SS 309

Rif. 300 mq ca

Immobile a uso commerciale/ristorazione in comparto con distributore di carburante

Immobile commerciale di 300 mq al PT con piazzale di 2.000 mq, fronte SS 309

Rif. 3567C
Progetto
Locazione dell'intera superficie disponibile al PT
Superficie
300 mq ca
Stato
Locazione

L’immobile proposto si trova a Comacchio (FE), via Romea 65, lungo la SS 309 Romea, arteria ad alto transito.

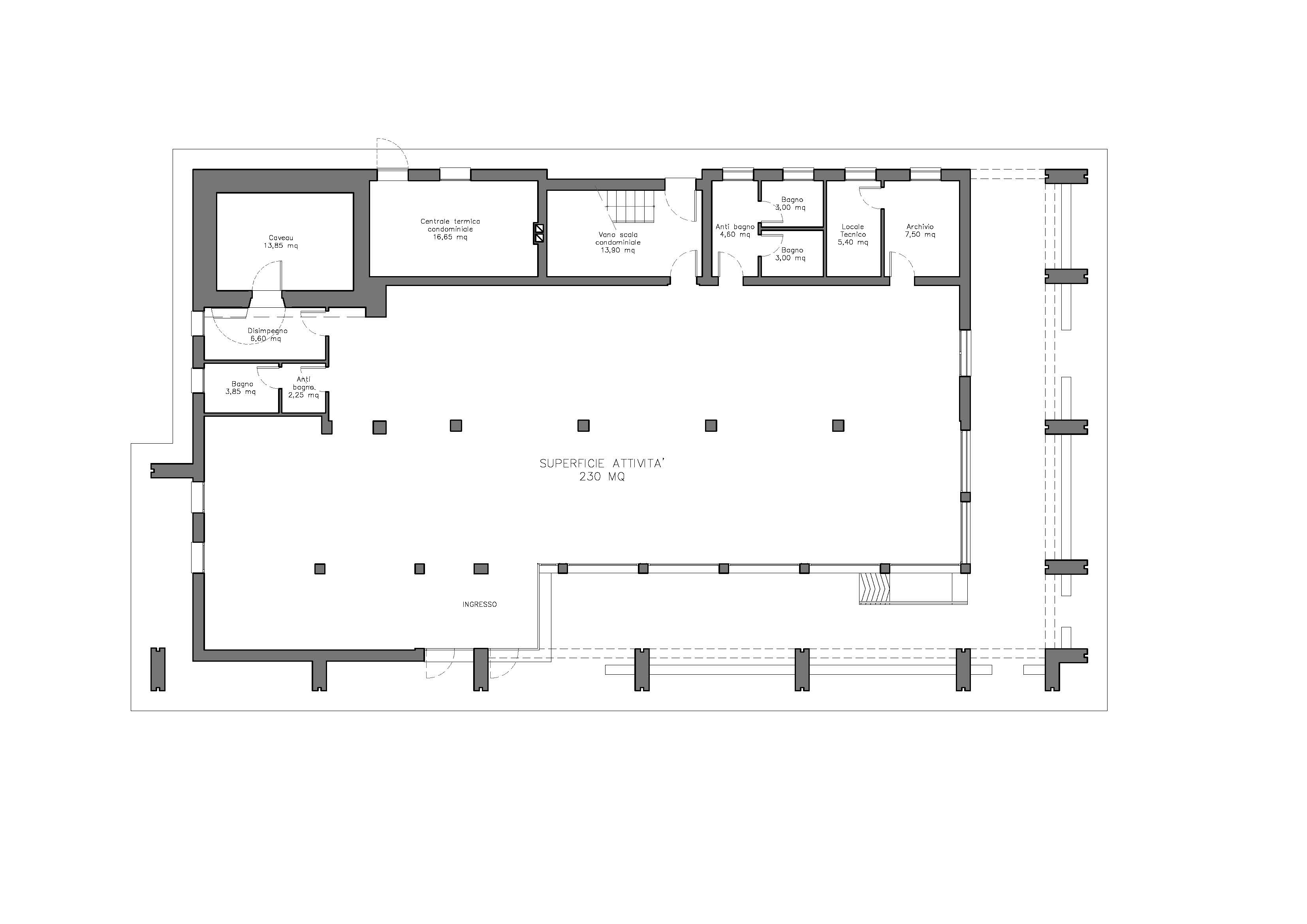
Il comparto comprende:

  • Piano Terra: superficie coperta di circa 300 mq, in passato sede bancaria, oggi destinata ad uso commerciale/ristorazione.

  • Piano Primo: 122,8 mq a destinazione residenziale, cedibile o locabile separatamente.

  • Piazzale fronte strada: circa 2.000 mq, con accesso carrabile autorizzato e possibilità di numerosi posti auto.

Il progetto prevede la cessione o locazione dell’intera superficie al piano terra, con canone di riferimento pari a 10 €/mq nello stato di fatto. L’immobile è già dotato di impianti funzionanti (allarme, videosorveglianza, elettrico e climatizzazione caldo/freddo).

Elemento di rilievo è la prossimità con la futura stazione di servizio Conad, marchio con performance superiori alla media nazionale, con cui condividerà l’accesso dal piazzale. Nelle vicinanze sono presenti altre insegne a richiamo (C+C Cash and Carry, Risparmio Casa).

Si tratta dunque di una proposta interessante per attività di ristorazione o commerciale, grazie a visibilità, flusso veicolare costante e contesto sinergico con il nuovo distributore.

Altri annunci commerciali

Richiesta informazioni

Compila il form per richiedere maggiori informazioni: un nostro consulente ti contatterà al più presto!

CAPTCHA